Objektart
Adresse
Objektdaten
Informationen
Ausstattung
Details
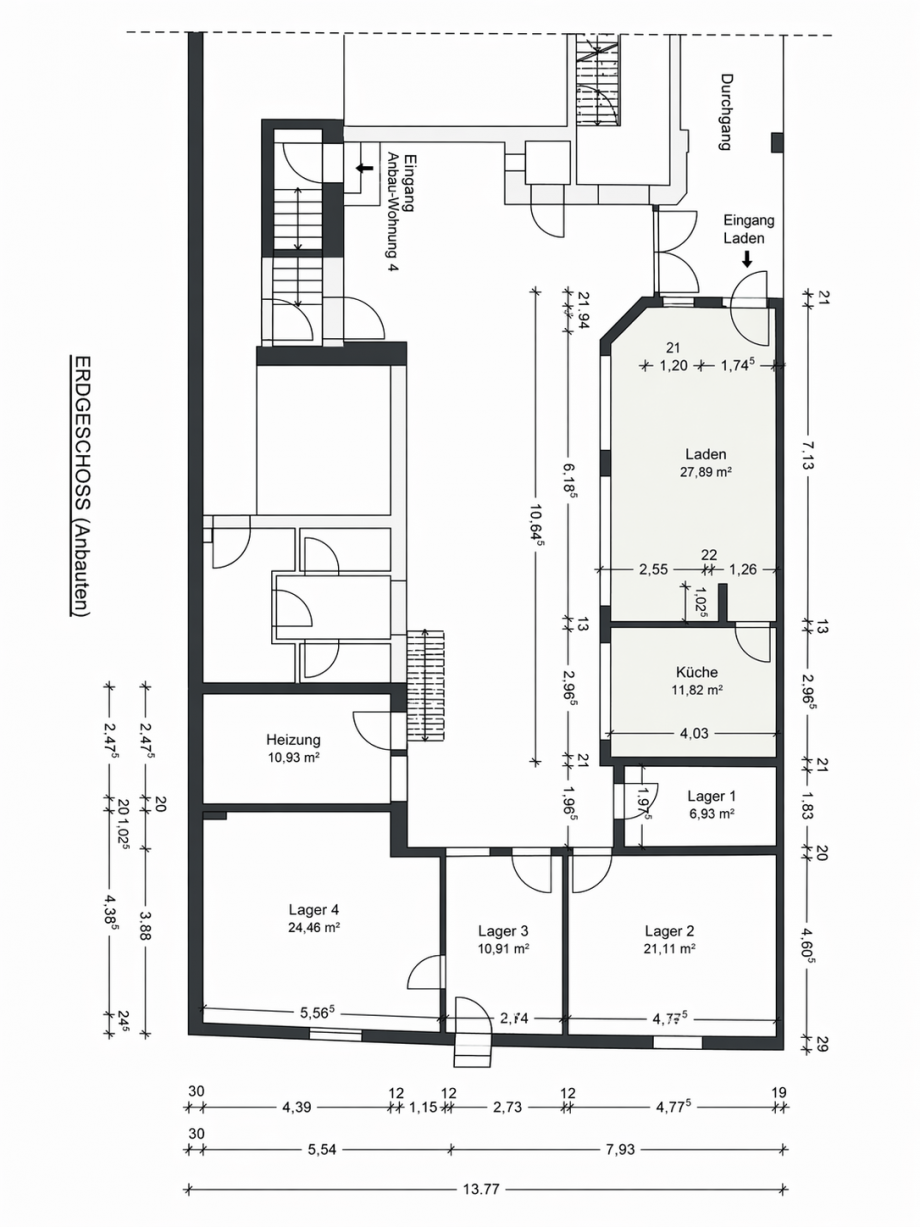
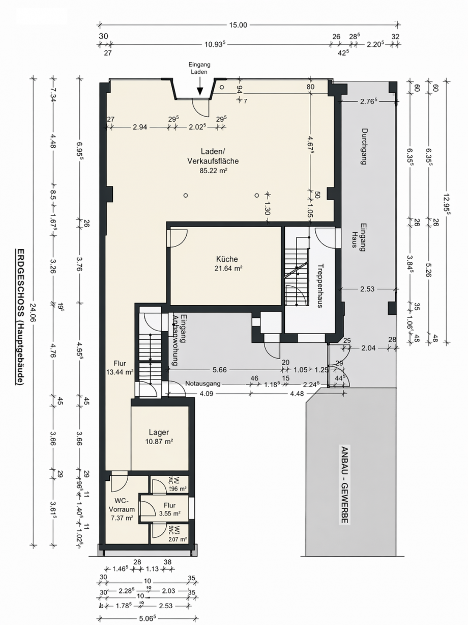
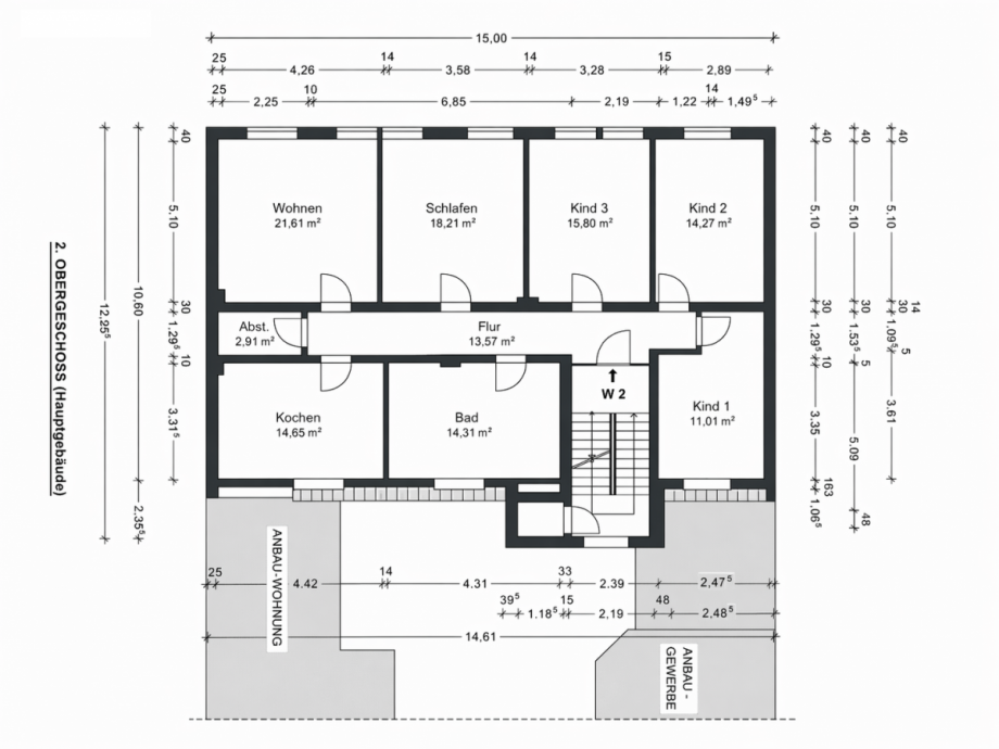
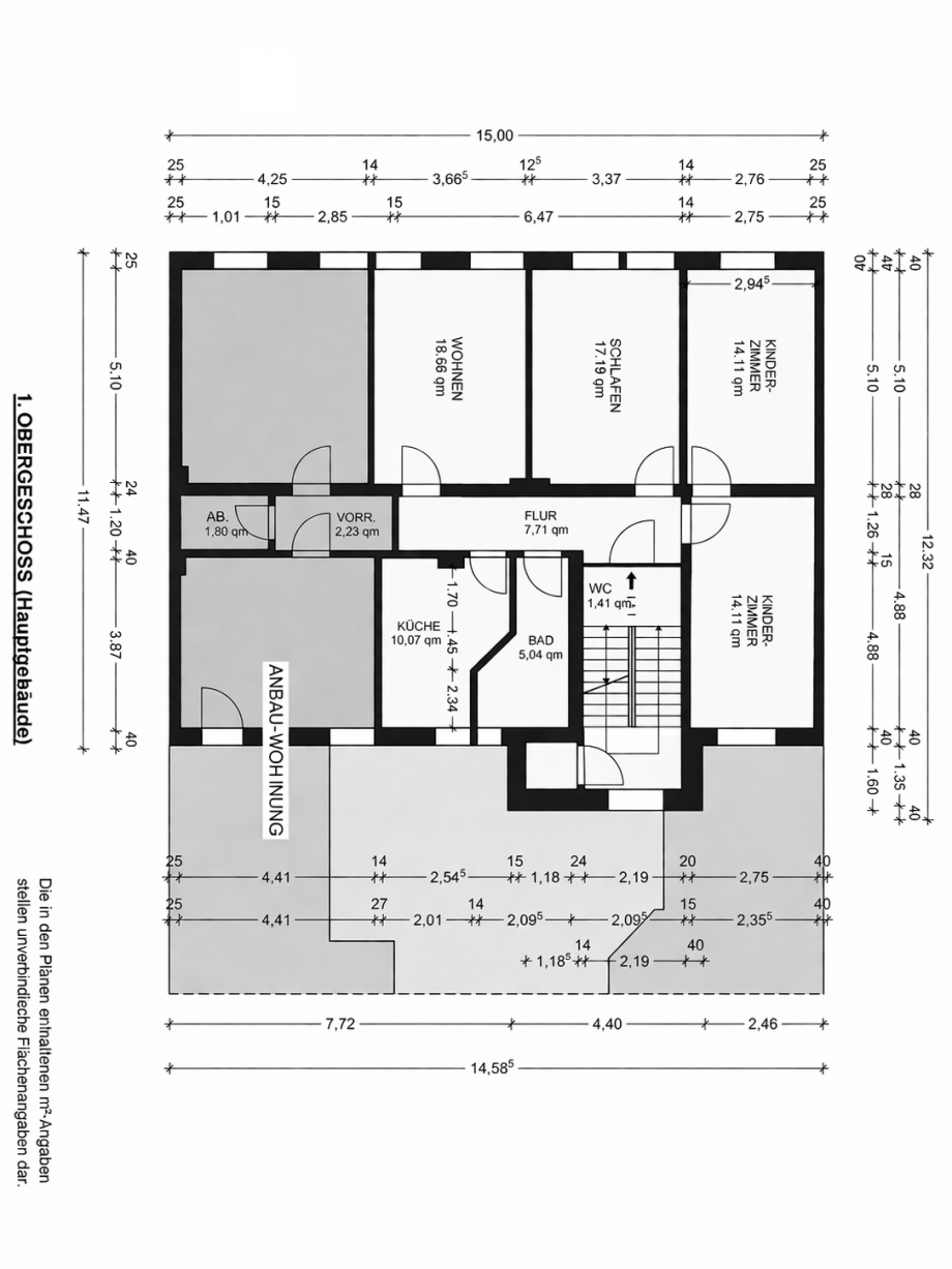
Das im Jahr 1915 erbaute Mehrfamilienhaus mit einer Wohnfläche von 463 m² und einer Gewerbefläche von 260 m² erstreckt sich über drei Etagen und befindet sich auf einem 988 m² großen Grundstück. Insgesamt verfügt diese Immobilie über 828 m² Nutzfläche. Das Gebäude wurde im Jahr 2021 zuletzt modernisiert und präsentiert sich in einem guten Zustand. Insgesamt drei Etagenheizungen sorgen für Wärme in den Räumlichkeiten. Des Weiteren verfügt das Haus über einen Keller mit einer Fläche von 105 m².
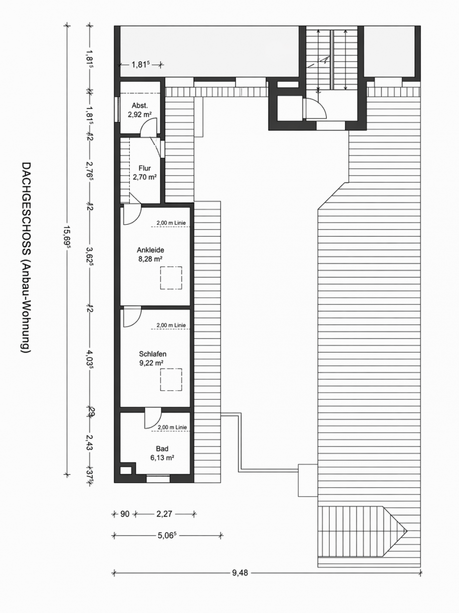
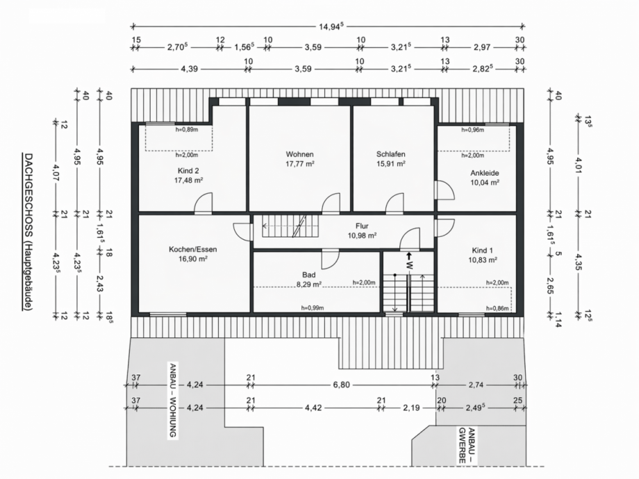
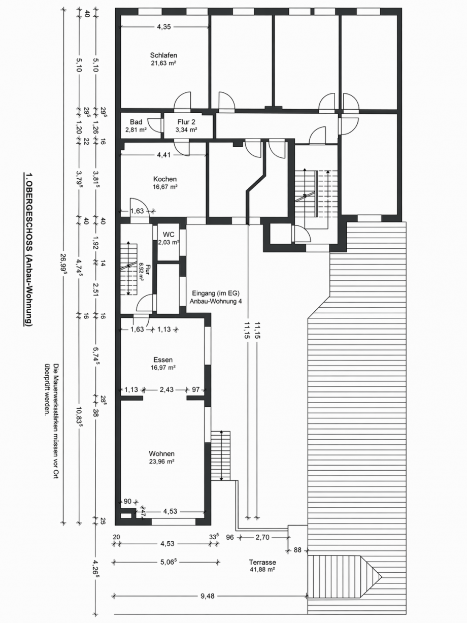
Die Räumlichkeiten des Mehrfamilienhauses bieten viel Platz und Helligkeit. Auf den drei Etagen befinden sich insgesamt vier Wohnungen, wovon die Wohneinheit im 2. Obergeschoss derzeit nicht vermietet ist und Potenzial zur Mietoptimierung bietet. Die modernen Bäder und Renovierungen der einzelnen Einheiten sorgen für ein zeitgemäßes Ambiente, während die großzügigen Wohn- und Schlafzimmer zum Verweilen einladen. Die Wohnfläche von 463 m² verteilt sich auf die verschiedenen Wohnungen wie folgt:
Wohnung Anbau: ca. 150 m²
Wohnung 1. OG: ca. 90 m²
Wohnung 2. OG: ca. 130 m²
Wohnung DG: ca. 110 m²
Zusätzlich zu den Wohneinheiten gehören noch zwei Gewerbeeinheiten und ein ausladender Garten mit einer Fläche von 520 m² zum hier angebotenen Objekt. Die beiden Gewerbeeinheiten sind langjährig vermietet. Ebenso stehen mehrere Lager- bzw. Büroräume zur Verfügung die an die Mieter zusätzlich vermietet werden können.
Ladenlokal Straßenseite: ca. 150 m²
Ladenlokal Hinterhof: ca. 50 m²
Lagerfläche: ca. 65 m²
Zum Schutz der Privatsphäre der Mieter sind nur einige Teile der hier angebotenen Immobilie abgelichtet. Bei einer Besichtigung vor Ort kann das gesamte Objekt begutachtet werden. Die jährliche Nettokaltmiete und Grundrisse der Immobilie können bei Interesse zur Verfügung gestellt werden.
Die hier angebotene Immobilie stammt aus dem Baujahr 1915 und wurde durch einen Anbau im Jahr 1969 erweitert. In den vergangenen fünf Jahren wurden neue Etagenheizungen verbaut und ein Großteil der Wohnflächen optisch und technisch saniert. Die Fenster und das Treppenhaus der Immobilie wurde im Jahr 2000 erneuert. Ebenso wurde das Hofgebäude im Jahr 1998 einschließlich Wärmeverbundsystem vollständig renoviert.
Das Mehrfamilienhaus befindet sich in der Innenstadt von Selm, einer beschaulichen Stadt im Nordosten von Nordrhein-Westfalen. Das Objekt prägt sich gut in die Umgebung ein die von gemischter Nutzungs- und Bebauungsstruktur geprägt ist. Die Immobilie ist zentral gelegen und von einer Vielzahl von großen Parkplätzen umringt. Geschäfte, Banken und Restaurants sind fußläufig in wenigen Metern zu erreichen.
Ich bin damit einverstanden, dass mir Karten von Google angezeigt werden. Es gelten die Datenschutzbedingungen von Google (https://policies.google.com/privacy).
Ich bin einverstanden